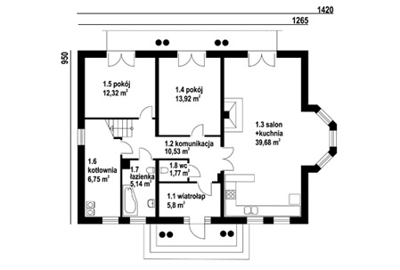
Wygodny, przestronny dom, bogata funkcja pomieszczeń. Ozdobą elewacji jest wykusz, który jest także dodatkowym miejscem na jadalnię.
Symbol : Tak
Powierzchnia użytkowa : 168.85
Powierzchnia użytkowa piwnicy : 0.00
Powierzchnia użytkowa garażu : 0.00
Powierzchnia użytkowa pomieszczenia gospodarczego : 0.00
Powierzchnia użytkowa kotłowni : 0.00
Powierzchnia użytkowa zabudowy : 131.00
Powierzchnia całkowita : 232.00
Szerokość : 18.50
Długość : 22.50
Kubatura : 688.00
Kalenica : 8.40
Dach : 40.00
Dodatki :
Cena projektu : 1900.00
Garaż : Nie
Parterowy : Nie
Piwnica : Nie