Adamów

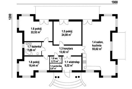
Budynek nawiązuje do tradycji polskich dworów z alkierzami, parterowy bez poddasza użytkowego. Duży salon z aneksem kuchennym. Kominek z możliwością odzysku ciepła.


Symbol : 10
Powierzchnia użytkowa : 155.26
Powierzchnia użytkowa piwnicy : 0.00
Powierzchnia użytkowa garażu : 0.00
Powierzchnia użytkowa pomieszczenia gospodarczego : 0.00
Powierzchnia użytkowa kotłowni : 0.00
Powierzchnia użytkowa zabudowy : 205.00
Powierzchnia całkowita : 268.00
Szerokość : 20.00
Długość : 27.00
Kubatura : 920.00
Kalenica : 7.50
Dach : 35.00
Dodatki :
Cena projektu : 2200.00
Garaż : Nie
Parterowy : Tak
Piwnica : Nie

Elewacja

Rzuty

Wizualizacje