Busko

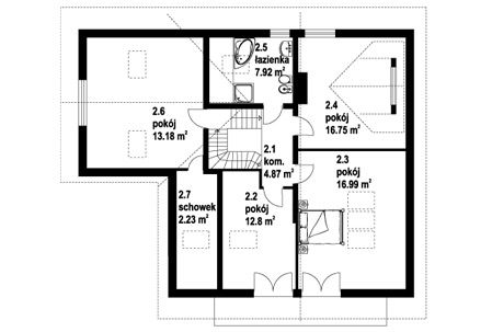
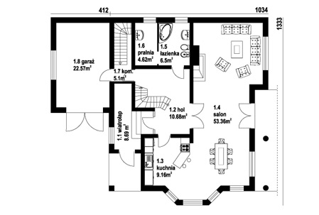
Przestronny dom z podpiwniczeniem. Parter to część dzienna: kuchnia, duża jadalnia i salon. Na poddaszu cztery pokoje, łazienka i schowek. Piwnice zapewniają zaplecze gospodarcze i mogą stanowić część rekreacyjną.


Symbol : 24
Powierzchnia użytkowa : 172.85
Powierzchnia użytkowa piwnicy : 89.61
Powierzchnia użytkowa garażu : 22.57
Powierzchnia użytkowa pomieszczenia gospodarczego : 0.00
Powierzchnia użytkowa kotłowni : 0.00
Powierzchnia użytkowa zabudowy : 195.50
Powierzchnia całkowita : 453.50
Szerokość : 23.00
Długość : 21.00
Kubatura : 1123.00
Kalenica : 7.60
Dach : 35.00
Dodatki :
Cena projektu : 2000.00
Garaż : Tak
Parterowy : Nie
Piwnica : Tak

Elewacja

Rzuty

Wnętrze

Wizualizacje