Olszówka

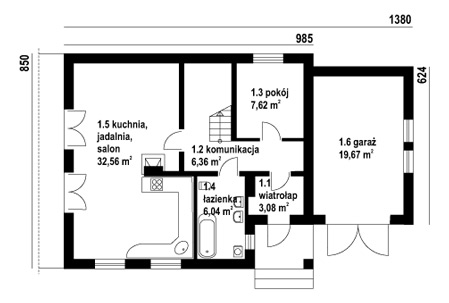
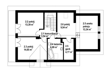
Kuchnia połączona z salonem - nad garażem pokój z aneksem.


Symbol : 25
Powierzchnia użytkowa : 120.98
Powierzchnia użytkowa piwnicy : 0.00
Powierzchnia użytkowa garażu : 19.67
Powierzchnia użytkowa pomieszczenia gospodarczego : 0.00
Powierzchnia użytkowa kotłowni : 0.00
Powierzchnia użytkowa zabudowy : 120.00
Powierzchnia całkowita : 209.60
Szerokość : 22.00
Długość : 16.00
Kubatura : 582.00
Kalenica : 8.18
Dach : 40.00
Dodatki :
Cena projektu : 1700.00
Garaż : Tak
Parterowy : Nie
Piwnica : Nie

Elewacja

Rzuty

Wnętrze

Wizualizacje