Polanka

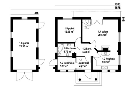
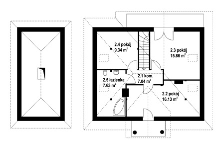
Dom z poddaszem użytkowym, garaż połączony z domem przewiązką. Schody na poddasze wychodzą z salonu.


Symbol : 6
Powierzchnia użytkowa : 117.86
Powierzchnia użytkowa piwnicy : 0.00
Powierzchnia użytkowa garażu : 25.93
Powierzchnia użytkowa pomieszczenia gospodarczego : 0.00
Powierzchnia użytkowa kotłowni : 0.00
Powierzchnia użytkowa zabudowy : 144.70
Powierzchnia całkowita : 197.40
Szerokość : 17.50
Długość : 25.00
Kubatura : 804.90
Kalenica : 8.30
Dach : 40.00
Dodatki : Kąt dachu garażu - 44
Cena projektu : 1700.00
Garaż : Tak
Parterowy : Nie
Piwnica : Nie

Elewacja

Rzuty

Wnętrze

Wizualizacje